







Funkcje i szczegóły



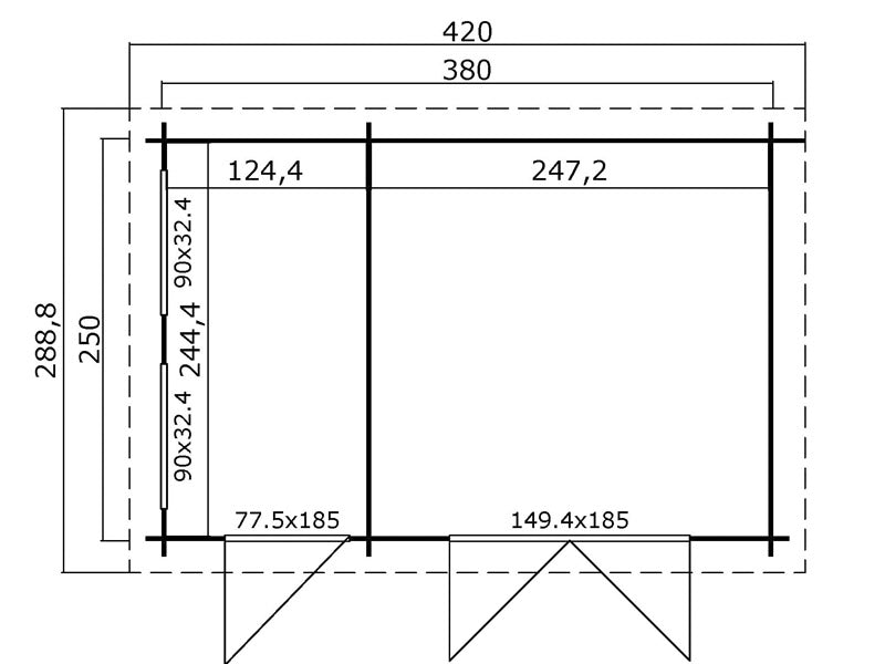
Drewniana szopa ogrodowa z mocnego i trwałego świerku skandynawskiego. Szopa posiada dwa oddzielne pomieszczenia – jedno z drzwiami jednoskrzydłowymi, drugie z drzwiami dwuskrzydłowymi z przeszkleniem. Możesz wykorzystać oba pomieszczenia do przechowywania narzędzi ogrodniczych, maszyn, rowerów, grilla i innych rzeczy – lub jako warsztat, do kreatywnych zajęć lub relaksu. UWAGA! Pokrycie dachu NIE jest wliczone w cenę. Zalecamy zapoznanie się z szeroką gamą różnych rodzajów pokryć dachowych w lokalnym sklepie dla majsterkowiczów lub w sklepie z narzędziami. Modularo® to nowoczesna marka lifestylowa oferująca trwałe produkty wysokiej jakości z litego drewna oraz nowoczesny design, dzięki czemu Twój czas spędzony w ogrodzie będzie jeszcze wspanialszy i przyjemniejszy.
Specyfikacja produktu
-
Typ DrzwiDouble hinged door
-
MateriałŚwierk skandynawski (PiceaAbies)
-
KolorNaturalny
-
Kąt Nachylenia Dachu (⁰)18
-
Zamekfalse
-
Rama Podłogowafalse
-
Grubość Paneli Ściennych (mm)28
-
Wysokość Boku (m)2
-
Numer produktuWC165360
-
Grubość Paneli Podłogowych (mm)15
-
Grubość Paneli Dachowych (mm)15
-
Długość Zewnętrzna (m)2.89
-
Szerokość Zewnętrzna (m)4.2
-
Występ Dachu (cm)20
-
Długość Wewnętrzna (m) (m)2.444
-
Szerokość Wewnętrzna (m)3.716
-
Waga (kg)736
-
Wysokość Grzbietu (m)2.39
-
Płyty Ścienne (mm)28
-
Drzwi Szer. x Wys. (m)1,49x1,85/0,77x1,85
- Drewniana szopa ogrodowa z dwoma osobnymi pomieszczeniami
- Jedno pomieszczenie z podwójnymi drzwiami z przeszkleniem
- Drugie z pojedynczymi drzwiami i dwoma oknami
- Wykonana z trwałego i pięknego świerku skandynawskiego
- Drzwi dwuskrzydłowe zapewniają łatwy dostęp
- W ciągu dnia okno zapewnia naturalne światło wewnątrz szopy
- Oboje drzwi są zamykane na zamek
- Drzwi dwuskrzydłowe 149,4 x 185 cm
- Drzwi jednoskrzydłowe 77,5 x 185 cm
- Okna 90 x 32,4 cm
- Idealna do przechowywania narzędzi ogrodowych i nie tylko
- Może służyć jako warsztat itp.
- W zestawie drewniana podłoga
- Filc dachowy nie jest wliczony w cenę!
- Wszystkie części prefabrykowane
- Łatwa w montażu
- Po montażu należy zastosować preparat do ochrony drewna
- Małe pomieszczenie 3,1 m²
- Duże pomieszczenie 6,2 m²
Elegancka drewniana szopa ogrodowa z dwoma osobnymi pomieszczeniami. Możesz wykorzystać oba pomieszczenia do przechowywania narzędzi ogrodniczych, maszyn, rowerów, grilla i innych rzeczy – lub jako warsztat, do kreatywnych zajęć lub relaksu. Szerokie dwuskrzydłowe drzwi z pojedynczym przeszkleniem zapewniają łatwy dostęp i naturalne światło wewnątrz szopy w ciągu dnia. Małe pomieszczenie ma jedne drzwi i dwa okna, przez które w ciągu dnia wpada światło. Drzwi można zamknąć za pomocą wbudowanego zamka bębenkowego, aby zapewnić bezpieczne schronienie dla wszystkich twoich rzeczy.
Szopa jest dostarczana jako prefabrykowany zestaw montażowy. Zalecamy, aby podczas montażu obecne były dwie osoby, ale nie są wymagane żadne specjalne narzędzia. Wystarczy postępować zgodnie ze szczegółową instrukcją montażu. Szopa wykonana jest z naturalnego drewna, dlatego po montażu zalecamy jak najszybsze zabezpieczenie jej wysokiej jakości preparatem do ochrony drewna. Wybierz kolor według własnych upodobań lub przezroczysty preparat, aby dłużej cieszyć się pięknym drewnem.
Modularo® to nowoczesna marka lifestylowa skupiająca się na wysokiej jakości, trwałości i komforcie. Marka oferuje szeroką gamę trwałych produktów drewnianych, takich jak szopy, pawilony ogrodowe, szklarnie i drewniane domki, dzięki którym życie w ogrodzie będzie jeszcze lepsze i przyjemniejsze. Zapewniamy elegancki design, funkcjonalność i przestrzeń do życia.
- W przypadku silnego wiatru Twoim obowiązkiem jest odpowiednie zabezpieczenie namiotu, aby nie uszkodzić materiałów i nie zranić ludzi.
- Podczas opadów śniegu, może on gromadzić się na dachu namiotu. Duże obciążenie śniegiem może spowodować zawalenie się namiotu. Na Tobie spoczywa odpowiedzialność za usuwanie śniegu z dachu namiotu o uchronienie go przed uszkodzeniem.
- Proszę upewnić się przed złożeniem i spakowaniem namiotu, że jest on całkowicie suchy. Dzięki temu unikniesz powstawania pleśni wewnątrz namiotu.
- Nie pakuj ani nie rozpakowuj swojego namiotu w temperaturze poniżej zera.
- Wewnątrz namiotu ani w jego pobliżu nie używaj otwartego ognia, sprzętu spawalniczego, ani innych źródeł płomienia.
- Proszę pamiętać, że gwarancja Dancover ma zastosowanie tylko do zdarzeń powstałych podczas normalnego, zgodnego z instrukcją użytkowania produktu. Gwarancja nie obejmuje normalnego zużycia produktu. Nie obejmuje również uszkodzeń, defektów i zużycia powstałych wskutek niewłaściwego użytkowania, złej konserwacji, nadużycia, nieuprawnionej modyfikacji lub wystawienia na złe warunki pogodowe.
- Zalecamy sprawdzenie, czy Twój namiot jest objęty polisą ubezpieczeniową zawartości Twojego domu.
Szopa drewniana Narva 3,8x2,5x2,39m, 28mm, 9,3m², Naturalny
Funkcje i szczegóły








